開發商:中鼎集團 | 城市:玉林 | 類型:住宅社區 | 作者:東籬設計 | 發布時間:2020/6/19 9:25:01 | 瀏覽次數:5221
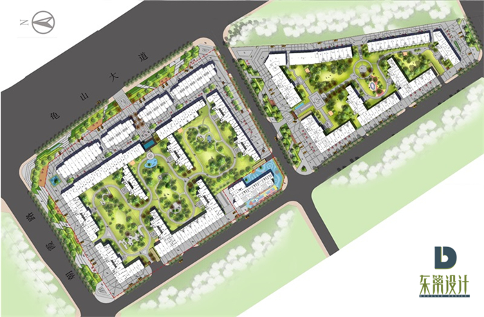
中鼎悅湖灣,項目位于廣西玉林,面積達150000平方米。項目以新山水為設計指導,提取“云、水、山”元素,構建行云流水空間,為景觀注入新活力,詮釋現代詩意棲居。

實景圖

免費咨詢景觀設計
國內頂級團隊為您護航設計
熱門動態 +MORE
廣東廣州·康泰國際中心景觀 04-26
防城港海都文化廣場三四期 04-26
東方財智廣場 04-26
海南海口·秀英萬達廣場 04-26
山東煙臺·萬達華府 04-26
廣西玉林·中鼎悅湖灣 04-26
廣東廣州·龍湖天瑯知識城 04-26
廣西桂林·華夏麒麟公館 04-26
廣東東籬環境股份有限公司 地址:廣州市海珠區琶洲新港東路618號南豐匯大廈16樓! 24小時咨詢:18924001288



